La ministra Diana Morant participa en una recepción con las falleras mayores de Sagunto
Tras la recepción institucional en el Ayuntamiento, visita la A.C. Falla Plaza Rodrigo y la A.C. Falla El Palleter



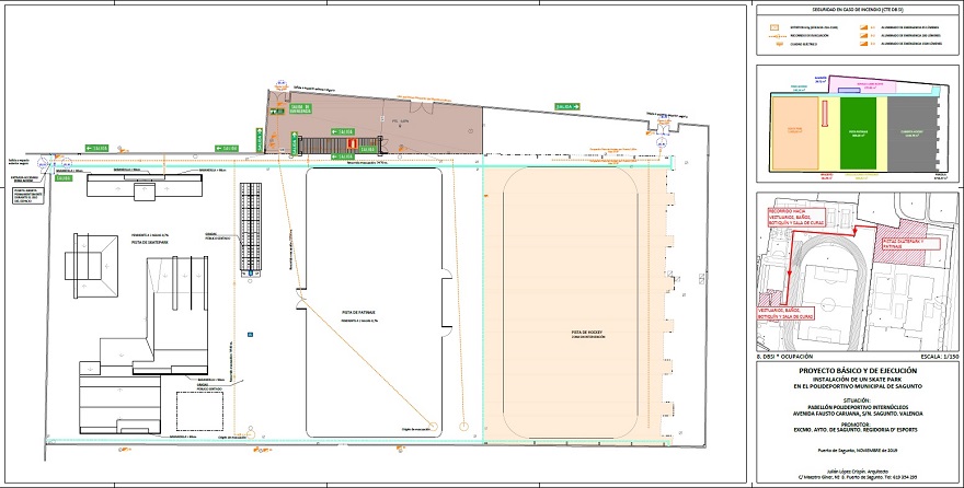
Para Raro estas nuevas pistas de skate y patinaje «son un ejemplo del esfuerzo que hace el Ayuntamiento por tener unas instalaciones de la máxima calidad, que permitan a nuestros clubes y deportistas hacer deporte en las mejores condiciones posibles. Y ya podemos asegurar que será una realidad en los próximos meses».
Una vez aprobada esta licitación, el concejal ha asegurado que los próximos objetivos a abordar a corto plazo, relacionados con las instalaciones deportivas municipales, serán la licitación de la cubierta de las pistas exteriores anexas al pabellón José Veral, «instalación sobre la que estamos finalizando el proyecto constructivo» y, sobre todo, la nueva licitación del pabellón ubicado en el SUNP-VI, «que volveremos a lanzar en las próximas semanas una vez se haya finalizado el expediente de contratación adaptado a los nuevos precios, tras una nueva inyección económica de parte municipal, que se aprobó en el pleno extraordinario de mayo».
Tras la recepción institucional en el Ayuntamiento, visita la A.C. Falla Plaza Rodrigo y la A.C. Falla El Palleter
La actuación del Plan de Sostenibilidad Turística en Destino está financiada por los fondos Next Generation de la Unión Europea
La entrega de premios ha sido presidida por el alcalde y la representación de la Federación Junta Fallera de Sagunto, que han entregado los galardones junto a la concejala de Fiestas y Cultura Popular